Cód.: 12484

Venta de Casa en San Francisco

$ 320.000 USD Ver más propiedades en San Francisco, Villanueva - Tigre
check Expensas promedio por lote: $ 324.000
check Escriturable

***APTO CRÉDITO***  3 HABITACIONES | DEPENDENCIA | PILETA | GALERIA + PARRILLA

 

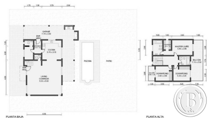
Casa desarrollada en dos plantas, de 135m² cubiertos y 60m² semi-cubiertos, en un amplio lote. Orientación sureste.

 

PLANTA BAJA: Hall de distribución. Amplio Living-Comedor.  Hogar a leña. Cocina integrada con el living con isla para desayunar, salida a la galería. Lavadero separado. Dependencia de servicio completa con baño. Toilette. 

PLANTA ALTA:  Pasillo de distribucón.  Suite con vestidor y baño completo,con salida a un amplio balcón terraza. Dos dormitorios con placards completos, comparten un baño. Unos de los dormitorios tiene salida al balcón con vista al jardín y el otro tiene salida al balcón que da al frente. 

EXTERIOR: amplio jardín. La galería es amplia y cómoda. Parrilla completa con cerramiento, mesada y pileta. Estacionamiento cubierto para 1 vehiculo y descubierto para otros más. Pileta con cerco de hierro 

 

BUSTAMANTE PROPIEDADES S.A
Natalia M. Teltschik 
CMZC437

La información gráfica y escrita en el presente aviso es meramente a título estimativo y no forma parte de ningún tipo de documentación contractual. Las medidas y superficies descriptas en el presente son aproximadas y no resultan vinculantes, las definitivas surgirán del título de propiedad del inmueble referido. Así mismo los importes de tasas, servicios y expensas indicados están sujetos a verificación. El valor del inmueble indicado en el presente puede ser modificado sin previo aviso.
BUSTAMANTE PROPIEDADES ®

 

Características
check 1. Superficie cubierta 135 m²
check 2. Superficie semicubierta 60 m²
check 3. Superficie del terreno 900 m²
check A/A
check Antiguedad 15 años
check Breakfast
check Calefacción
check Cantidad de baños 3
check Cantidad de dormitorios 3
check Cantidad de dormitorios en suite 1
check Cantidad de plantas 2
check Cocina
check Dependencia
check Escritorio
check Hall
check Jardín
check Lavadero
check Living comedor
check Parrilla
check Pileta
check Protección para niños
check Terraza
check Tipo de aire acondicionado Pre instalado
check Tipo de calefacción Spilts / Estufas
check Tipo de cochera Cubierta
check Toilette
San Francisco - Descripción

El Barrio Cerrado San Francisco se encuentra en el complejo Villa Nueva sobre un total de 98 hectáreas, con 573 lotes. Fue uno de los cuatro protagonistas de un lanzamiento histórico. Actualmente posee una alta densidad de población, grandes espejos de agua, lo destacan por ser un barrio estratégicamente ubicado.

 

Con 28 hectáreas de lagunas, ubicado en el corazón mismo de Villa Nueva, rodeado por barrios cerrados. El predio linda con los Barrios San Andrés y Casas de Santa María. Totalmente constituido y parquizado. Posee plazas cerradas con juegos para niños, una cancha de fútbol infantil y estaciones saludables para ejercitar. Además de dos muelles públicos, uno en el ingreso y otro en el fondo del barrio con bajada de kayaks y guardería.

 

  • Accesos:por Panamericana-Ramal Escobar, bajada del Km 40, a través de la calle La Bota; por la calle Dean Funes; o por Acceso Tigre, tomando el Camino de los Remeros, Ruta 27, Calle Italia y Boulevard Villanueva.
  • Seguridad: sólida infraestructura las 24hs,sistemas de video, sensores y seguridad permanente. Cámaras de seguridad perimetrales y alarma por corte de alambrado.
  • Amenities de la zona: Clubes deportivos, tenis y de equitación. Charter Mary-Go.
  • Colegios cercanos(Jardín-Primaria-Secundaria):San Isidro Delta School, St´Francis, San Pablo, Dover High School , Northfield, Cardenal Pironio, Farmingdale, St´ Lukes, Michael Ham, Arrayanes, Hans Christian Andersen, Santa Teresa, San Ramón, Northlands.
  • Centro comercial:Vila Terra, Farmacia y Centro Médico Villanueva (consultorios médicos y estudios de alta, media y baja complejidad). Supermercado y estación de servicio.
  • Cercano al barrio:se encuentra el Centro Médico Maschwitz en Torre Pueblo, posee Guardia pediátrica, consultorios y estudios de alta, media y baja complejidad.
  • Servicios:luz, pavimento, teléfono e internet por fibra óptica, gas natural, agua corriente, desagüe cloacal.

 

Información adicionalExpensas ordinarias $ 324.000 (febrero 2026). Barrio escriturable.

 

 

san-francisco-villanueva-tigre-209077
Villanueva, Tigre San Francisco Ver características del Barrio San Francisco
Contáctenos